2
Habitaciones
Venta
Departamentos en Venta – Ciudad San Isidro
Modernos, funcionales y con una excelente relación calidad–precio, estos departamentos representan una gran oportunidad para quienes buscan un espacio cómodo y bien distribuido dentro de una zona en crecimiento.
Ubicados dentro del Fraccionamiento Ciudad San Isidro, se encuentran en una torre de cuatro niveles diseñada para aprovechar al máximo cada metro cuadrado, ofreciendo un ambiente cálido y práctico para vivir.
Características
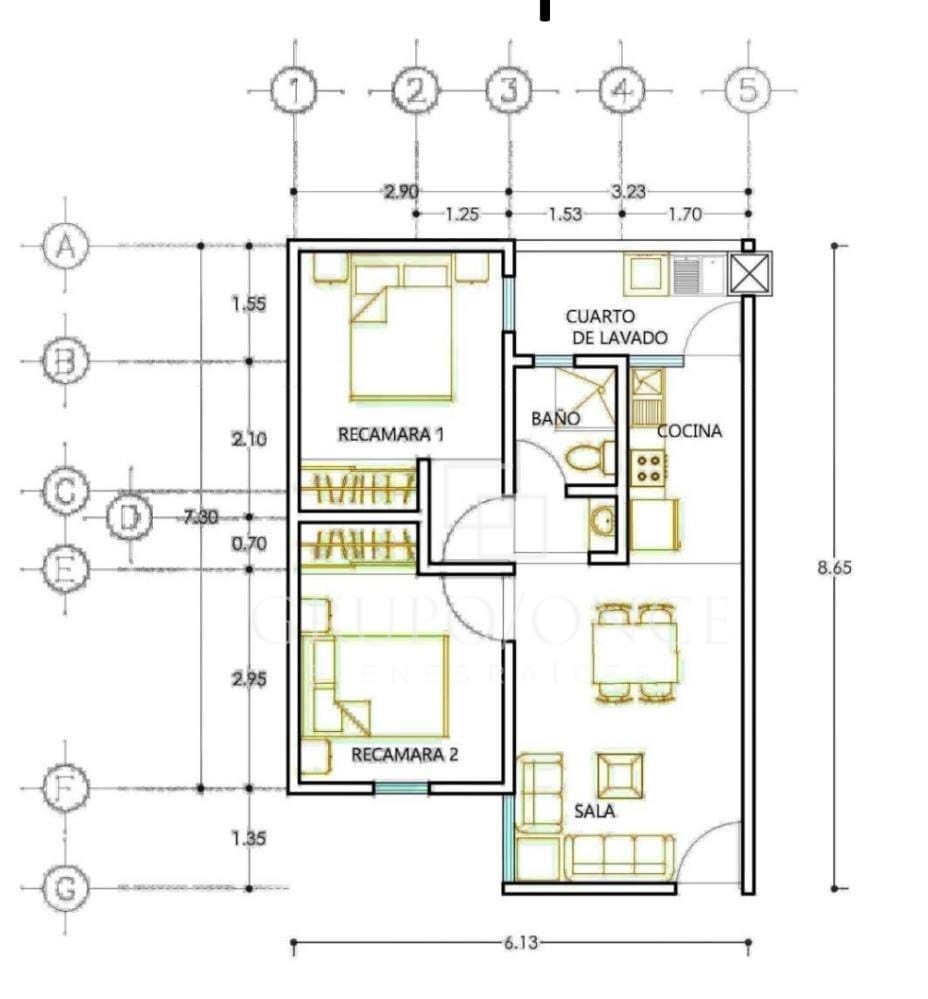
- 2 recámaras
- 1 baño completo
- Sala y comedor en concepto abierto
- Cocina
- Cuarto de lavado
- Superficie total de 48.83 m²
Estos departamentos aceptan todos los créditos, lo que facilita tu proceso de compra y te permite elegir la opción que mejor se adapte a tus necesidades.
Si deseas conocerlos, comunícate para agendar una cita
Precio y disponibilidad sujetos a cambios sin previo aviso.
Tipo de Crédito
- Todos los Créditos
Características
48.83
m² construidos
N/A
1
Baños
GO/ZO/04/337
CÓDIGO



